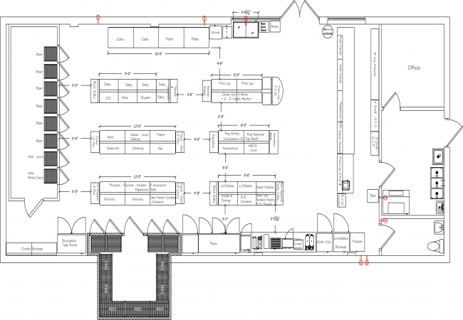
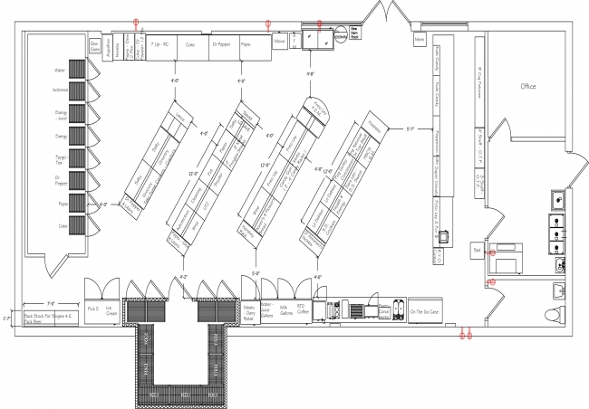
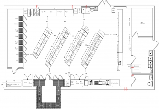
Merchandising & Store Design
Modernize Your Store for Success With TEAM SLEDD
Experienced Dedicated Team
Professional Personalized AutoCAD Drawings
New Store Build Or Remodel? We Handle Them All
Increase Sales & Margins By Having The Optimal Layout
Complete Line Of Shelving In Stock & Ready To Go
Guaranteed Results - Increased Sales & Profits


|
|
||
||







